








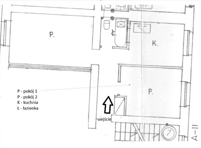
Sprzedam mieszkanie 46m w odnowionej kamenicy.
Mieszkanie składa się z
2 pokoje
osobna kuchnia ( możliwość połączenia z 1 pokojem w formie aneksu )
łazienka
korzytarz
Do mieszkania przynależy komórka lokatorska
OKAZJA! W tej okolicy nie ma ofert.
Świetna lokalizacja komunikacyjnie.
Mieszkanie do odnowienia – pierwsze 4 zdjęcia to propozycja wizualna bez mebli i po odmalowaniu
This is a common note that can be displayed on all properties but controlled from one simple option.