




Nowoczesny dom w Pietrzejowicach, gm. Kocmyrzów-Luborzyca
Stan surowy otwarty | działka 6 arów | dachówka ceramiczna | cena 545 000 zł | bez prowizji! | rok budowy 2025|
Na sprzedaż nowoczesny dom jednorodzinny z użytkowym poddaszem i garażem, położony w Pietrzejowicach (gm. Kocmyrzów-Luborzyca, powiat krakowski).
Idealna propozycja dla osób, które marzą o własnym domu w spokojnej i zielonej okolicy, z szybkim dojazdem do Krakowa i Proszowic.
O inwestycji
Dom w stanie surowym otwartym, położony na kameralnym osiedlu nowych budynków jednorodzinnych.
Projekt wyróżnia nowoczesna bryła, duże przeszklenia i funkcjonalny układ pomieszczeń, który zapewnia komfort całej rodzinie.
Budynek wykonany został z pustaka ceramicznego Porotherm DryFix, a dach pokryto trwałą dachówką ceramiczną.
Dojazd prowadzi nową, prywatną drogą betonową – wygodną i estetyczną.
Powierzchnie
Powierzchnia całkowita: 140 m2
Powierzchnia działki: 6 arów
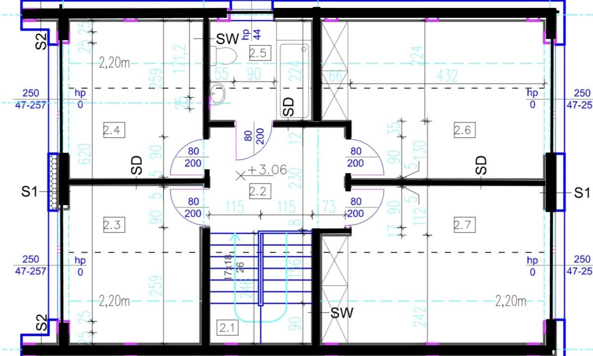
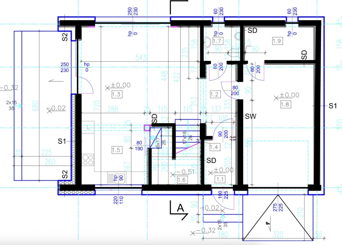
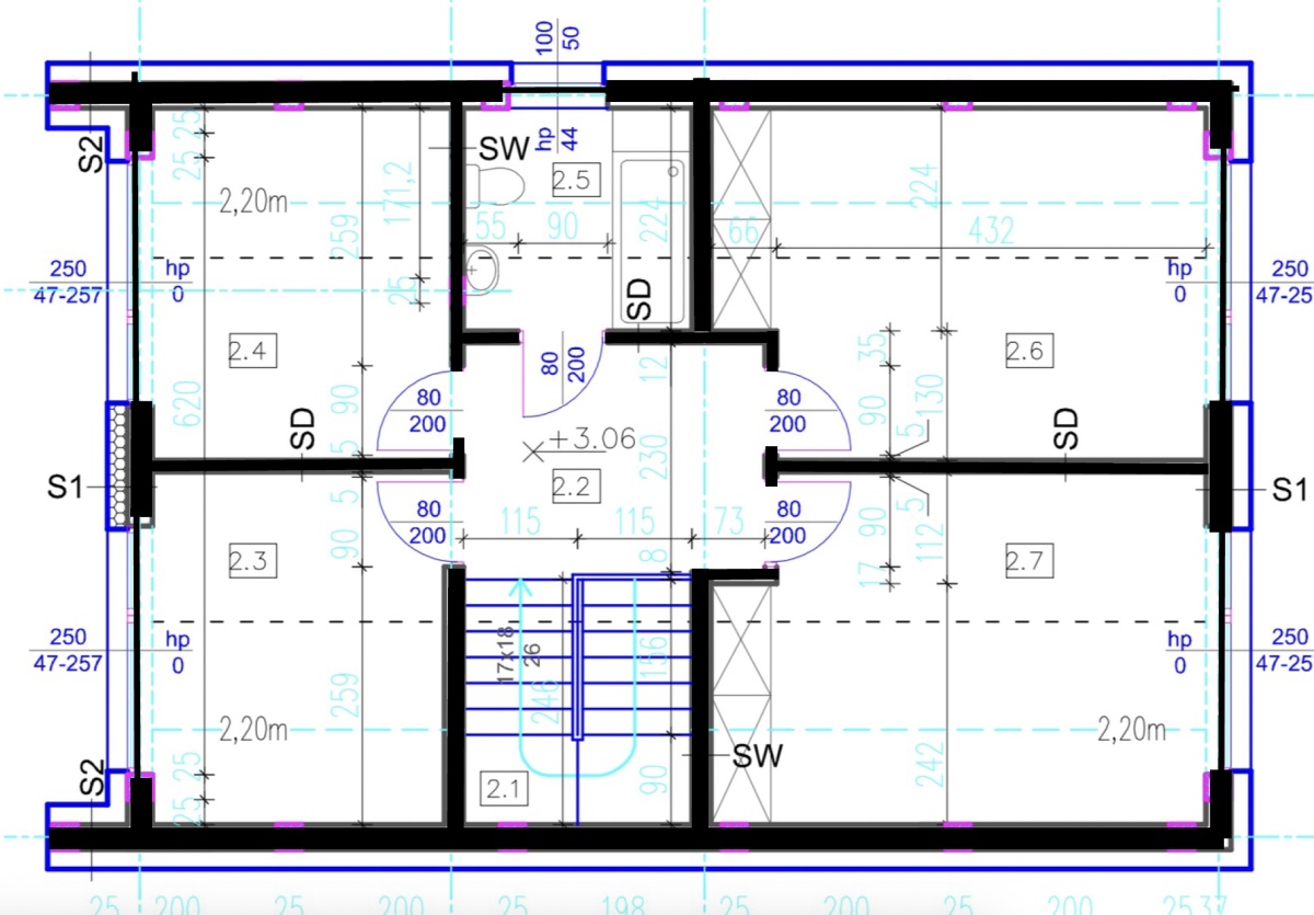
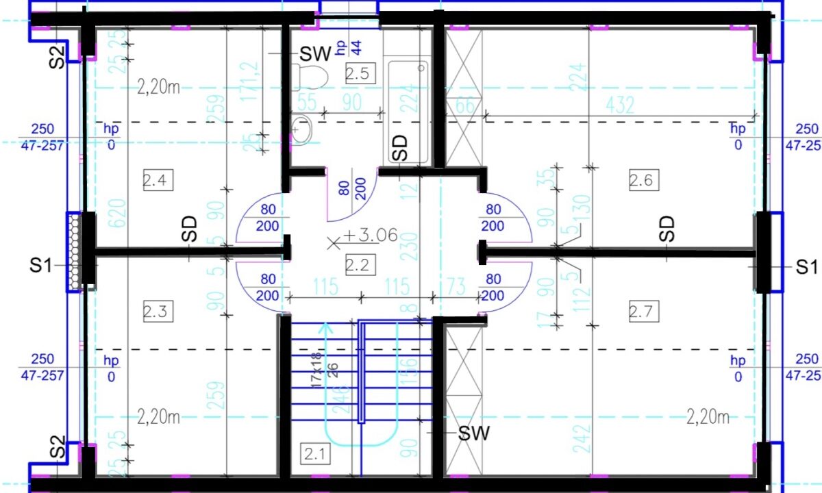
Rozkład pomieszczeń
Parter:
-wiatrołap 3,5 m2
-korytarz 4,5 m2
-otwarta kuchnia 8,10m2
-przestronny salon z wyjściem na ogród 24,3 m2
-spiżarnia 1, 6 m2
-WC 3,1 m2
-kotłownia 4,4 m2
-garaż w bryle budynku 18,1 m2
Poddasze:
-4 komfortowe sypialnie
-sypialnia 1: 9,8 m2
-sypialnia 2: 10 m2
-sypialnia 3: 16 m2
-sypialnia 4: 15 m2
-łazienka 6,5 m2
-korytarz 7,5 m2
-klatka schodowa 3,4 m2
Atuty nieruchomości
-nowoczesny i elegancki projekt
-efektowne przeszklenia
-solidna technologia budowy (Porotherm DryFix)
-dachówka ceramiczna – trwałość i estetyka
-prywatna, betonowa droga dojazdowa
-spokojna i bezpieczna okolica nowych domów
-pełne nasłonecznienie działki
-doskonała lokalizacja – szybki dojazd do Krakowa, Proszowic i Nowej Huty
-bez pośredników i prowizji!
Lokalizacja
Pietrzejowice, gm. Kocmyrzów-Luborzyca – spokojna miejscowość położona wśród zieleni, z bardzo dobrym dojazdem do Krakowa. To idealne miejsce dla rodzin, które cenią ciszę, przestrzeń i nowoczesny styl życia.
Dlaczego warto?
Ten dom to połączenie solidnego wykonania, funkcjonalnego projektu i świetnej lokalizacji.
Kupując na tym etapie, możesz samodzielnie zaaranżować wnętrze i dopasować je do swoich potrzeb.
Nie czekaj – zrealizuj marzenie o własnym domu w spokojnej okolicy!
Kontakt bezpośredni z właścicielem:
514 852 270 lub 514 852 247
Bez prowizji i pośredników!
This is a common note that can be displayed on all properties but controlled from one simple option.
Malownicza działka pod lasem